460.00m2
Villa Ortega. Villa de lujo en venta en Moraira con vistas panorámicas.
Formulario de contacto
Grupo Garcia
Descripción
Ubicada en una excepcional parcela elevada con impresionantes vistas panorámicas del Mediterráneo y del encantador pueblo, esta villa contemporánea ha sido cuidadosamente diseñada para integrarse a la perfección con el entorno natural. Su distribución en varios niveles se adapta al paisaje, garantizando privacidad y vistas despejadas al mar desde todos los ángulos.
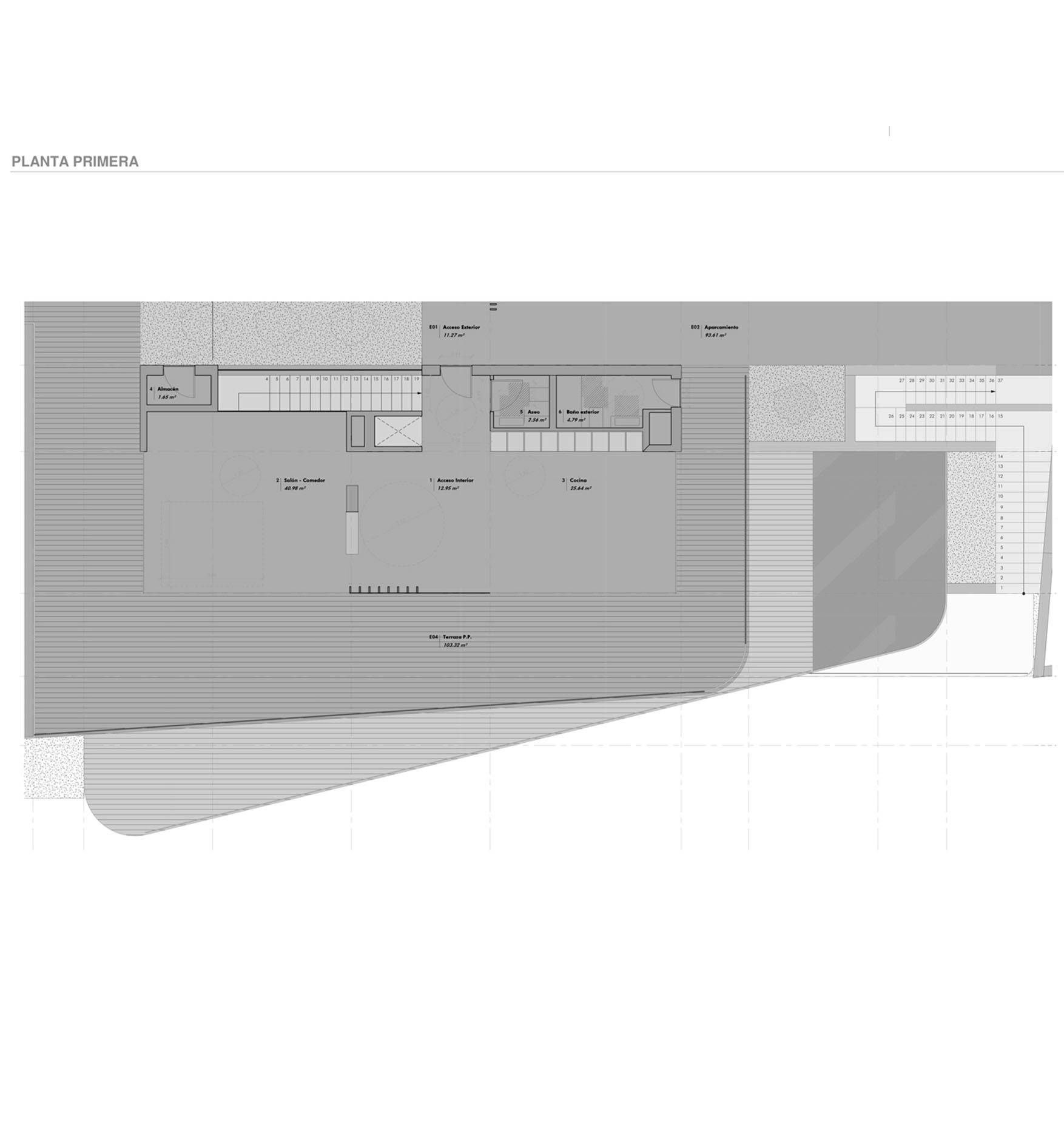
La propiedad ofrece cuatro espaciosas habitaciones dobles, cada una con baño en suite. La habitación principal tiene acceso directo a una piscina infinita privada con jacuzzi en la planta baja, un refugio idílico para relajarse. La villa también cuenta con dos aseos (uno exterior), aire acondicionado frío/calor y calefacción por suelo radiante. Una moderna cocina totalmente equipada con electrodomésticos de alta calidad complementa las elegantes zonas de estar de planta abierta, todas ellas mejoradas con avanzados sistemas de domótica.
Diseñada para disfrutar al aire libre, la villa cuenta con un hermoso jardín privado, una zona de barbacoa y amplias terrazas cubiertas y abiertas, perfectas tanto para el entretenimiento como para la relajación. Una espectacular piscina infinita en la primera planta crea un punto focal espectacular, acompañada de una elegante zona de relax junto a la piscina. Otras características destacadas incluyen un garaje para dos coches, un amplio aparcamiento exterior, jardines iluminados y un práctico ascensor que conecta todas las plantas.
Con una ubicación ideal a poca distancia del pintoresco pueblo costero de Moraira, esta villa ofrece el equilibrio perfecto entre tranquilidad y accesibilidad. A tan solo una hora de Valencia y Alicante, Moraira combina el encanto de un tradicional pueblo pesquero con la vitalidad cultural de las ciudades cercanas. Con más de 300 días de sol al año y una temperatura media de 27 °C, es un destino ideal para disfrutar de actividades al aire libre como navegar desde sus pintorescos puertos deportivos, jugar al golf, al tenis, practicar pádel y explorar sus impresionantes rutas de senderismo costeras y rurales. El relajado ambiente mediterráneo de Moraira, sus hermosas playas y su acogedora comunidad la convierten en uno de los lugares más codiciados de la Costa Blanca.
Características
Descubre todas las características excepcionales de este inmueble que lo convierten en la elección perfecta para tu próximo hogar.
Superficie

Metros Utiles:
264.00m2

Metros Construidos:
410.00m2

Metros Parcela:
910m2
Distribución

Habitaciones:
4

Baños:
4

Año de construcción:
2026
Datos Basicos

Estado:
En proyecto

Orientación:
Sur

Vistas:
Panoramicas

Tipo Calefacción:
Suelo Radiante

Eficiencia energética:
A
Calidades
Entorno
Propiedades
Relacionadas
Villa Celestia. Vistas panorámicas del mar y la montaña en esta villa a la venta en Moraira
En lo alto de la montaña y rodeada de un paisaje natural, se encuentra Villa Celestia. Una espectacular villa de 2 niveles ubicada en una de las zonas más cotizadas de toda la Costa Blanca. Con su arquitectura geométrica, amplios ventanales y una ubicación privilegiada, esta villa de lujo ofrece una conexión perfecta entre el […]
REF: PG6442
Villa Diamante. Villa de lujo con Increíbles vistas panorámicas en venta en Moraira
Presentamos una residencia magnífica y contemporánea ubicada en la pintoresca región de Teulada Moraira en Alicante, España. Esta lujosa casa moderna abarca tres niveles y cuenta con una serie de características impresionantes, incluido un cómodo ascensor de pasajeros que conecta sin esfuerzo los tres pisos, haciendo que la vida cotidiana sea muy sencilla. Situada en […]







