350.00m2
Formulaire de propriété
Grupo Garcia
Description
Cette fantastique villa avec vue sur la mer sera prête pour l’été. Le terrain est très bien situé et bénéficie de belles vues panoramiques.
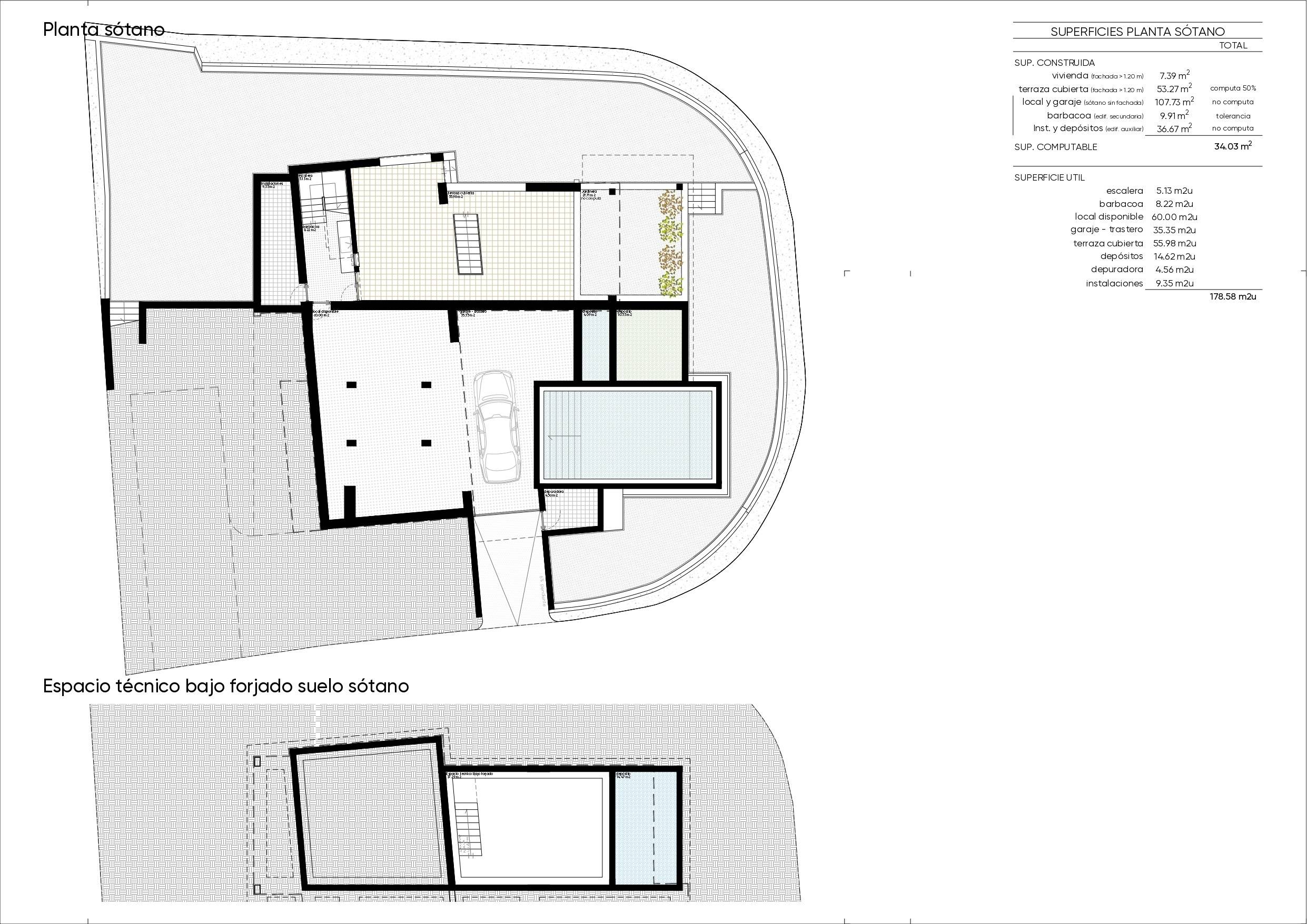
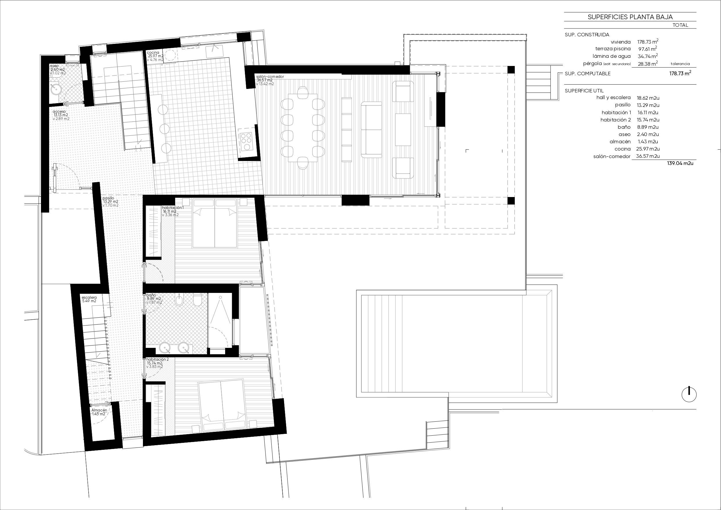
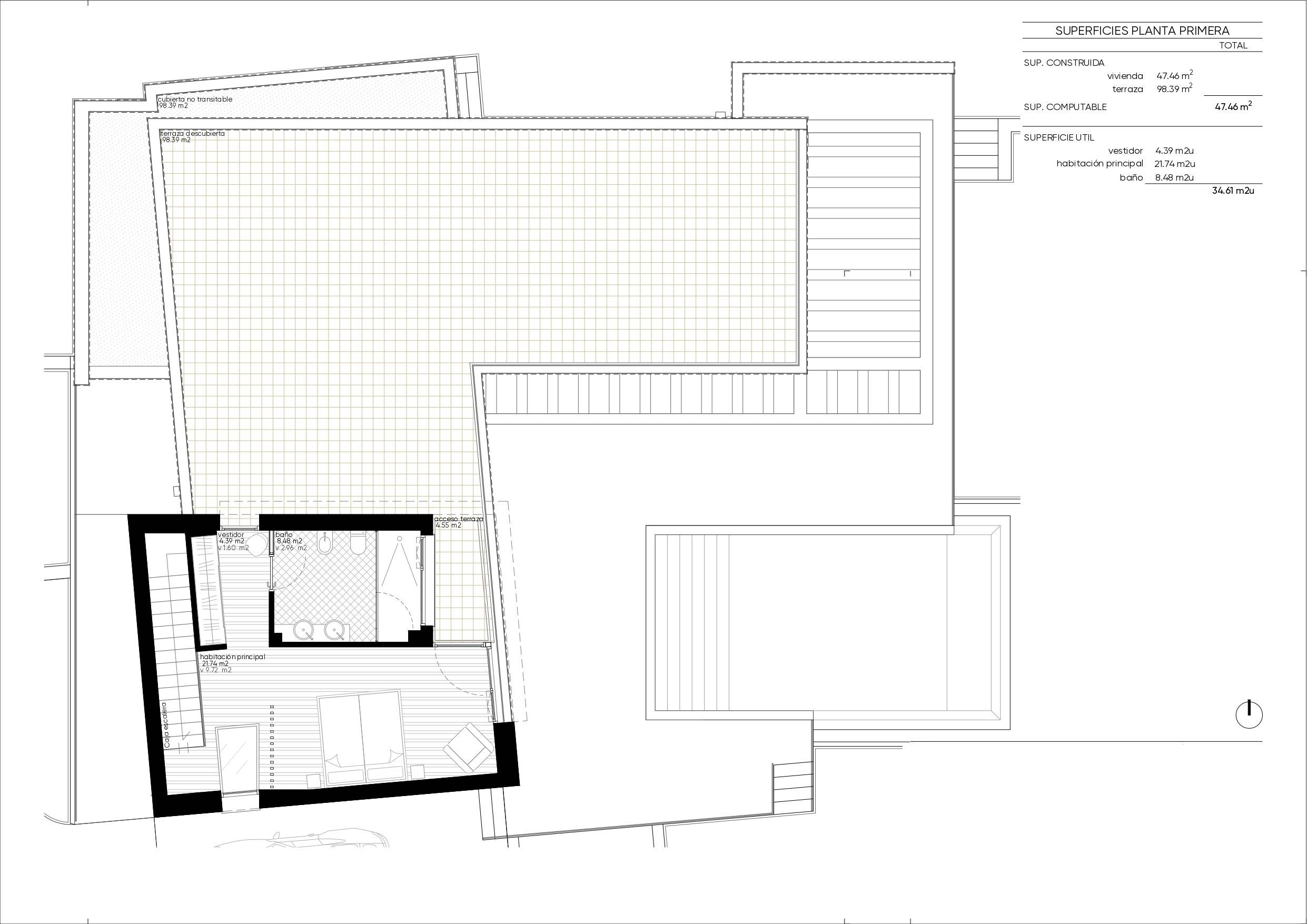
La maison se compose de deux étages et d’un sous-sol : au rez-de-chaussée se trouve un hall d’entrée avec un escalier intérieur et un couloir menant au salon, à la cuisine, à deux chambres, à une salle de bains et à des toilettes pour les invités. A l’extérieur se trouve la terrasse avec la piscine et la pergola. Au premier étage, auquel on accède par un escalier intérieur, on trouve un couloir menant à la chambre principale avec salle de bains attenante. Cette chambre a accès à une terrasse. Accès des véhicules par un portail coulissant et une porte piétonne. Ce portail est automatisé et fonctionne par télécommande.
La villa dispose d’une piscine privée de 8 x 4 m avec des marches. Cette propriété est construite avec les meilleurs matériaux : pré-installation de l’air conditionné, chauffage au sol, vidéophone. Les fenêtres, avec verre de sécurité, et les portes extérieures sont en aluminium et à l’intérieur, du bois DM laqué blanc est utilisé.
Si vous êtes intéressé et souhaitez obtenir plus d’informations ou visiter cette villa, contactez-nous et nous conviendrons d’un rendez-vous.
Caractéristiques
Découvrez toutes les caractéristiques exceptionnelles de cette propriété qui en font le choix idéal pour votre prochaine maison.
Surface

Mètres utiles :
242.00m2

Bâti Mètres :
725.56m2

Mètres Plot :
816m2
Distribution

Chambres doubles :
3

Non. Plantes :
2

Toilettes :
2

Année de construction :
2023
Données de base

Statut :
Nuevo

Orientation :
Sur

Type de chauffage :
Underfloor heating

Efficacité énergétique:
G
Qualités
Environnement
Propriétés
En rapport
REF : NC6727
Villa de luxe design à vendre dans le quartier prestigieux de San Jaime à Moraira
Cette villa design exclusive de grande qualité, située dans le prestigieux quartier de San Jaime à Benissa-Moraira, allie le charme méditerranéen au luxe contemporain, à la durabilité et à un emplacement privilégié offrant une vue sur la Méditerranée et l’imposant Peñón de Ifach. La propriété est implantée sur un vaste terrain et garantit une grande […]
REF : NC6717
Villa Nautica. Villa méditerranéenne avec vue sur la mer et le port de plaisance à vendre à Moraira.
Villa méditerranéenne avec vue sur la mer et le port de plaisance à vendre à Moraira Depuis les vastes terrasses de cette charmante villa, le regard se porte naturellement vers la mer Méditerranée. Le bleu profond de l’eau, le doux mouvement des voiliers dans le port et la silhouette caractéristique du Peñón de Ifach à […]








































































